Ваш баланс не активен. Вы можете принять участие в нашей партнёрской программе и использовать при оплате бонусы и баллы. Узнать подробнее
Исполнитель: Самсонов Сергей Сергеевич, 1975 гр.
Образование: высшее; инженер-строитель (ПГС). Опыт работы в дизайне интерьеров с 2004 года.
Навыки:
- разработка жилых и общественных Интерьеров (квартиры, таунхаусы, коттеджи, магазины, салон красоты, сауны, бассейны, гостиницы, Торговый центр «Гостиный Двор»);
- проектирование и реализации систем «Умного дома».Планировка, выполненная профессиональными дизайнерами позволит вам привлечь внимание покупателей и сократит сроки продажи объекта.
Если вы понимаете как должна выглядеть ваша квартира после ремонта, но не знаете как грамотно поставить задачу строителям, тогда этот вариант для вас.
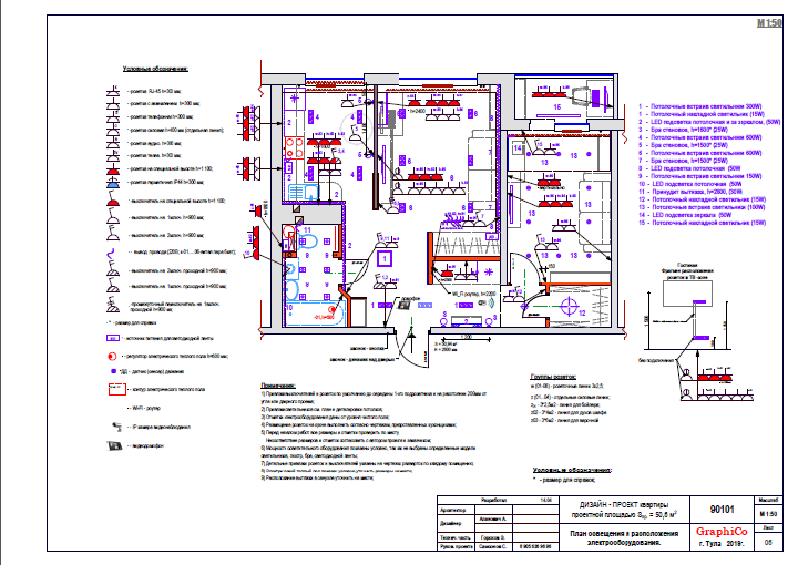
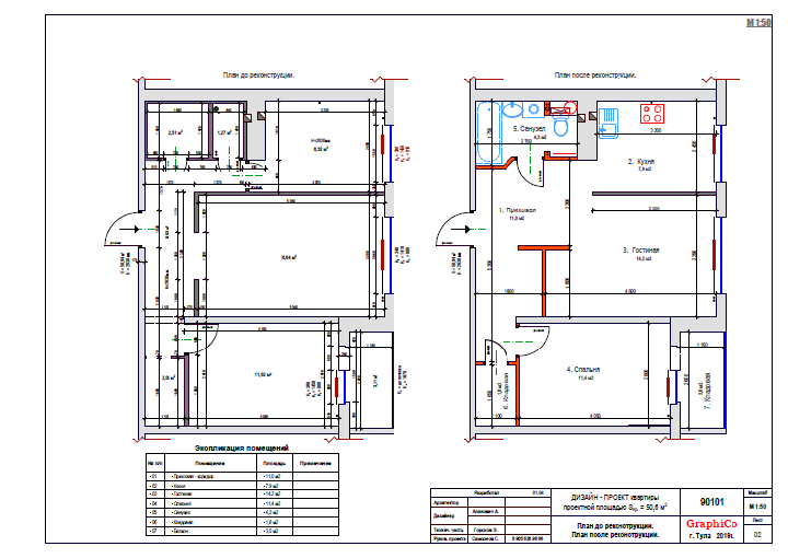
Данный проект включает варианты планировочных решений и основной пакет чертежей для выполнения отделочных работ.
Стоимость: 500 р/м2.
После заказа услуги, вам будет предложено прикрепить документы и указать адрес объекта.
Включает обработку обмерочных данных и далее варианты планировок.
После утверждения планировки разрабатываются основные чертежи проекта.
Вы сможете скачать всю проделанную работу.



Хочешь застраховать свою профессиональную ответственность? Заполни форму ниже и наши специалисты расскажут подробности!
Есть вопросы? Напиши нам в Telegram
Оставьте заявку и узнайте, как получить больше выгоды при работе на первичном рынке!
Оставьте заявку и получите ответы на свои вопросы от специалиста Консультационного центра для риэлторов по вопросам ведения предпринимательской деятельности Макромира!
Возможность работы в личном кабинете ограничена. Обратитесь к региональному управляющему партнёру.
Скопируйте ваш промокод и начните заказывать услугу. Укажите промокод в соответстующем поле.
Или воспользуйтесь им позже. Мы уже выслали промокод на вашу почту!

Для того, чтобы отрыть страницу «Скрипты продаж», и получить доступ к технологиям переговоров, которые уже используют ведущие эксперты по недвижимости, заполните обязательные поля в своём аккаунте
Для того, чтобы получить «Аудитоскрипты», нужно заполнить дополнительные поля:
Ещё больше возможностей доступно для партнёров компании «Макромир»


После заказа «Технический дизайн-проект» Вы сможете оставить свой отзыв